Retour aux biens

Appartement de 4.5 pièces, Bulle, Fribourg

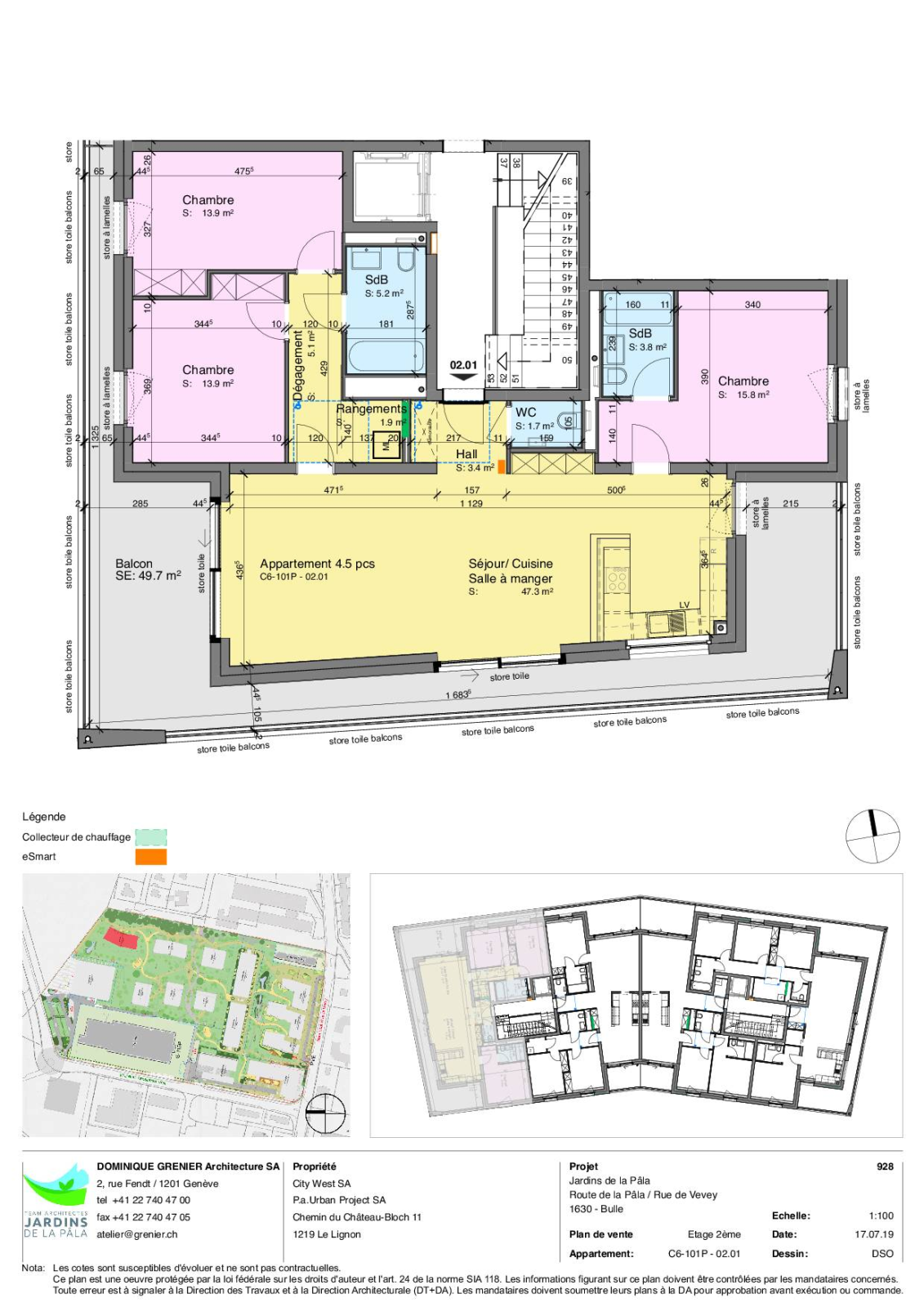
"Alpage" C6-101 - Lot 02.01 - Appartement de 4.5 pièces au 2ème étage

Réf 42987

4.5 pièces

3 chambres

2 salles de bain

130.05 m²

Venez découvrir le dernier bâtiment d'une magnifique promotion avec appartements en PPE - Quartier de la Pâla à Bulle -  L'Alpage est un immeuble de standing dans un beau parc arboré.

Les typologies varient selon vos envies et vos besoins, du 2.5 pièces au 5.5 pièces sur 5 étages, vous offrant une superbe vue sur le chef-lieu Gruyérien.

La composition des appartements vous apportera de grands espaces avec des surfaces habitables allant de 50 à 161 m². Profitez de terrasses très agréables.

La construction sera d'une qualité supérieure avec des matériaux de hauts standing ainsi qu'une architecture moderne.

Le cadre extérieur verdoyant conviendra parfaitement à toute personne aimant la verdure tout en appréciant le confort de la ville avec toutes les commodités. Livraison dernier trimestre 2020.

Caractéristiques du bien

Type :

Appartement

Pièce(s) :

4.5

Etage(s) :

2

Chambre(s) :

3

Salle de bain et douche :

2

Balcon(s) :

oui

Place(s) de parc :

Oui

Surface habitable :

115.1 m²

Disponibilité :

Sur demande

Exposition :

Sud-Ouest

Emplacement du bien

AUTRES BIENS AUX ALENTOURS

Propriété de 8 pièces au coeur de la Gruyère

Partager

Maison/Villa

LES SCIERNES-D'ALBEUVE

CHF 2'200'000.-

8.0 pièces

6 chambres

438 m²

Un voyage dans le temps au coeur d’un domaine historique !
Objet rare

Partager

Maison/Villa

MONTAGNY-LA-VILLE

Prix sur demande

16.0 pièces

14 chambres

691 m²

Appartement de 3.5 pièces à la Verrerie, Haute-Veveyse
Exclusivité

Visite 360°

Partager

Appartement

LA VERRERIE

CHF 649'000.-

3.5 pièces

2 chambres

106 m²

Découvrez le BARNES magazine