
Partager
Maison/Villa
8.0 pièces
6 chambres
438 m²
Partager
Réf 42979
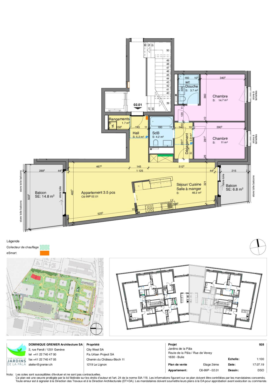
3.5 pièces
2 chambres
2 salles de bain
100


Partager
Maison/Villa
8.0 pièces
6 chambres
438 m²

Partager
Maison/Villa
16.0 pièces
14 chambres
691 m²

Partager
Appartement
3.5 pièces
2 chambres
106 m²