Retour aux biens

Appartement de 5.5 pièces, Bulle, Fribourg

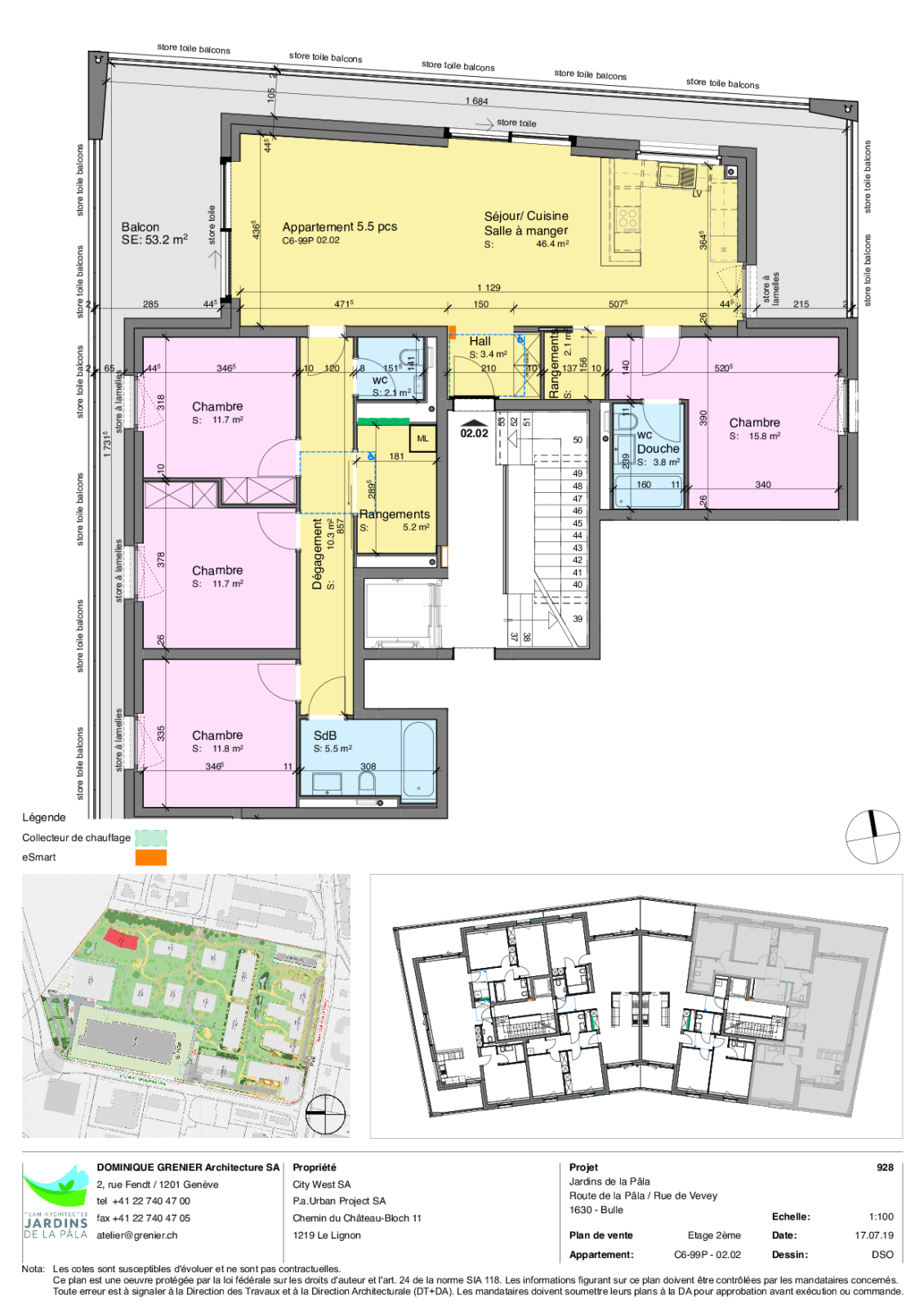
Exclusif : dernier appartement 5.5 pièces traversant au 2ème étage

Réf 42971

5.5 pièces

4 chambres

2 salles de bain

150

La commercialisation de la promotion du quartier de la Pâla à Bulle s'achève. Cet appartement de 5.5 pièces est le dernier disponible de cette superbe promotion au calme, proche de toutes les commodités et moyens de transports. Il est composé d'un grand séjour cuisine bien équipé, d'une grande chambre parent avec sa salle de bains, d'un wc visiteurs, d'une salle de bains, de 3 autres chambres avec placards et d'une grande pièces buanderie. Une belle terrasse et coursive complètent ce bien.
Les + :
- Domotique eSMART®, fibre haut débit
- Chauffage géothermique
- Grand balcon
- Grandes baies vitrées, luminosité
- Finitions de qualité

Architecture moderne, mobilité douce, jardins, calme et tranquillité font de ce quartier le nouveau centre de Bulle.
Ne tardez pas à venir le visiter !

Caractéristiques du bien

Type :

Appartement

Pièce(s) :

5.5

Etage(s) :

2

Chambre(s) :

4

Salle de bain et douche :

2

Balcon(s) :

oui

Place(s) de parc :

Oui

Surface habitable :

150.3 m²

Disponibilité :

Sur demande

Exposition :

Sud-Est

Emplacement du bien

AUTRES BIENS AUX ALENTOURS

Propriété de 8 pièces au coeur de la Gruyère

Partager

Maison/Villa

LES SCIERNES-D'ALBEUVE

CHF 2'200'000.-

8.0 pièces

6 chambres

438 m²

Un voyage dans le temps au coeur d’un domaine historique !
Objet rare

Partager

Maison/Villa

MONTAGNY-LA-VILLE

Prix sur demande

16.0 pièces

14 chambres

691 m²

Appartement de 3.5 pièces à la Verrerie, Haute-Veveyse
Exclusivité

Visite 360°

Partager

Appartement

LA VERRERIE

CHF 649'000.-

3.5 pièces

2 chambres

106 m²

Découvrez le BARNES magazine