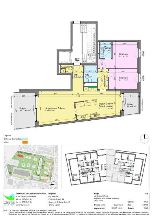
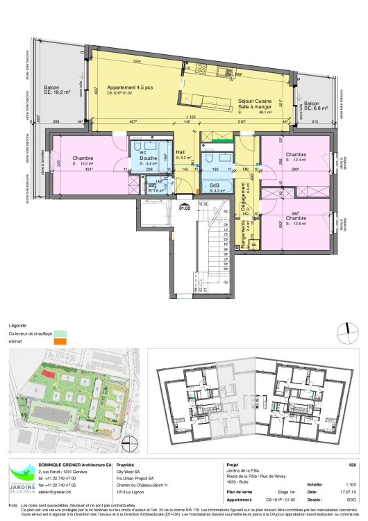
Une sélection de nos dernières ventes

Nombre de biens trouvés : 170

«»