Retour aux biens

Maison/Villa de 6 pièces, Lonay, Vaud

Villa individuelle - Opportunité Rare

Réf 79892

6.0 pièces

3 chambres

2 salles de bain

215 m²

CHF 2'590'000.-

Cette propriété s’étend sur une parcelle d’environ 1’600 m², au cœur du secteur résidentiel le plus paisible de Lonay. Située à l’extrémité du village, elle profite d’une tranquillité remarquable, tout en restant proche des commodités et des accès à Morges.

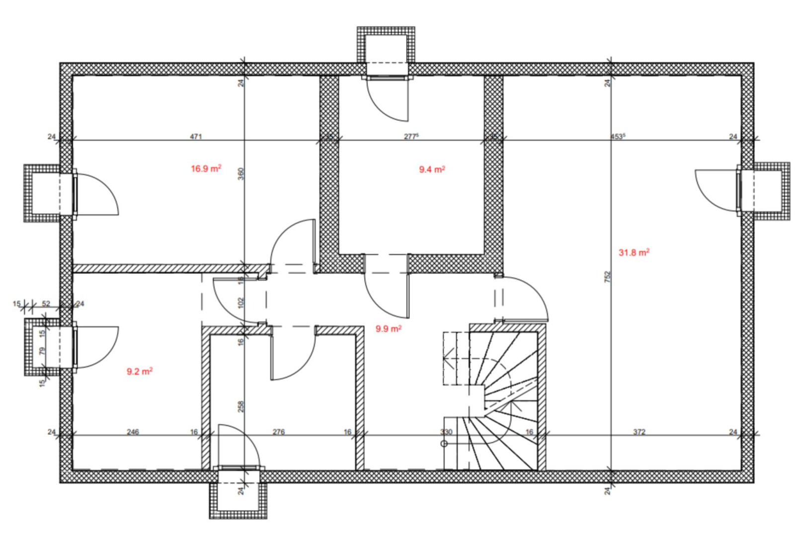
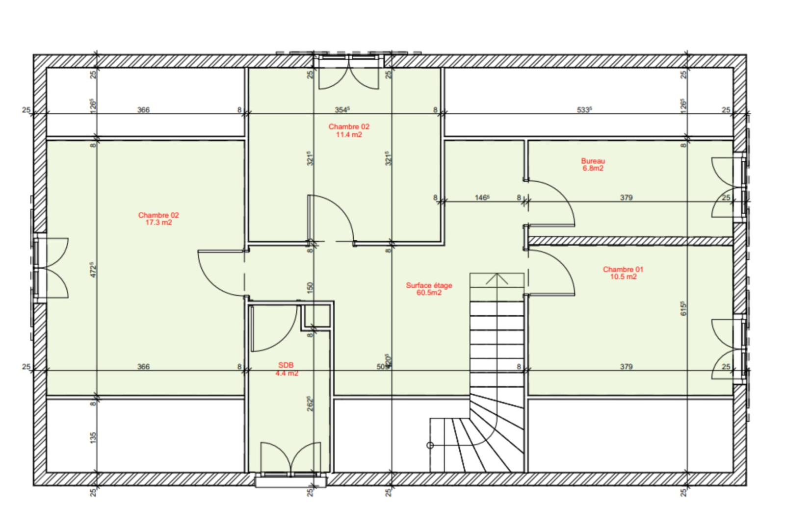
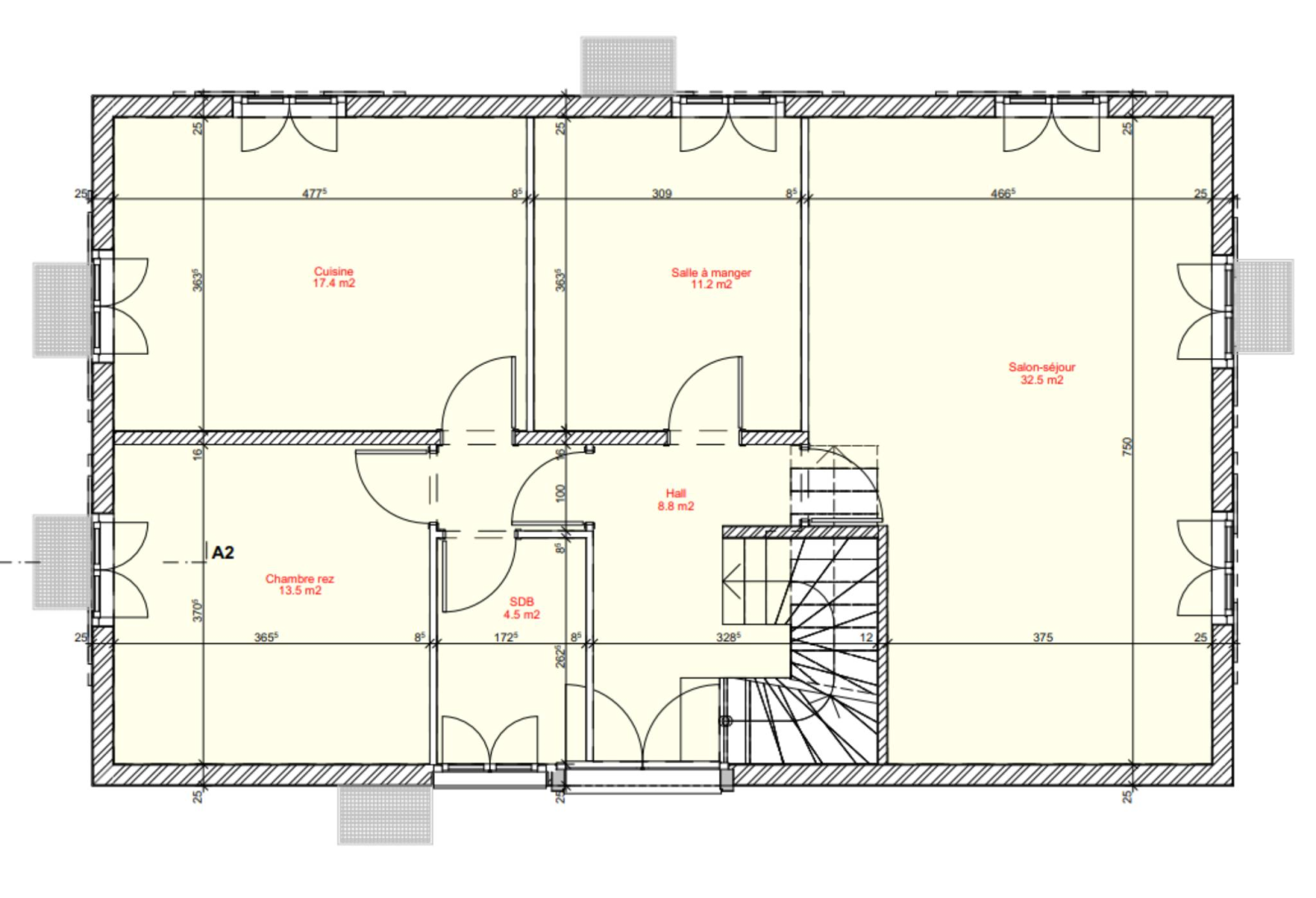
La villa propose environ 150 m² habitables pour une surface utile proche de 230 m². Grâce à la générosité du terrain et au gabarit de la parcelle, un projet d’extension permettrait d’atteindre un total d’environ 525 m² habitables, offrant un potentiel d’évolution exceptionnel : création d’un logement supplémentaire, agrandissement familial, aménagement d’un espace professionnel ou encore conception d’un bien de prestige.

Le jardin d’environ 1’400 m² constitue l’un des atouts majeurs de la propriété. Son vaste volume permet d’imaginer de nombreuses configurations extérieures, tout en garantissant une intimité rare dans un environnement verdoyant.

La maison bénéficie d’une pompe à chaleur air/eau, d’un garage individuel ainsi que d’un sous-sol d’environ 80 m², idéal pour des espaces de rangement, un atelier ou une surface polyvalente.

Lonay est un village apprécié pour son atmosphère chaleureuse et son cadre de vie privilégié, aux portes de Morges. L’arrêt de bus situé à moins de 50 mètres facilite les déplacements quotidiens, que ce soit vers les écoles, les commerces ou les grandes infrastructures.

Avec son emplacement recherché, la qualité de son environnement et son important potentiel constructible, cette propriété représente une opportunité rare pour un projet sur mesure, qu’il soit familial, patrimonial ou orienté valorisation immobilière.

Caractéristiques du bien

Type :

Maison/Villa

Prix de vente :

CHF 2'590'000.-

Pièce(s) :

6

Chambre(s) :

3

Salle de bain et douche :

2

Surface habitable :

150 m²

Surface du terrain :

1590 m²

Surface utile :

215 m²

Surface pondérée :

150 m²

Disponibilité :

Sur demande

Année de construction :

1966

Emplacement du bien

AUTRES BIENS AUX ALENTOURS

Magnifique demeure rénovée du XIXème siècle

Partager

Maison/Villa

MONTRICHER

CHF 4'850'000.-

15.0 pièces

4 chambres

800 m²

Un attique exclusif aux volumes généreux, avec jardin privatif

Visite 360°

Partager

Appartement

BUSSY-CHARDONNEY

CHF 1'295'000.-

5.5 pièces

4 chambres

174 m²

Propriété de caractère du XVIème siècle

Partager

Maison/Villa

VUFFLENS-LE-CHÂTEAU

CHF 3'750'000.-

12.0 pièces

3 chambres

1 160 m²

Découvrez le BARNES magazine