Barnes Morges vous propose en exclusivité cette spacieuse et lumineuse villa de 10 pièces + sous-sol avec vue dégagée et partielle sur le lac.
Cette maison aux volumes généreux ( 1'177m³ ) dispose de 6 chambres à coucher dont la suite parentale avec sa salle d'eau et dressing attenante et offre une surface habitables de 260 m² + sous-sol.
Implantée sur une parcelle de près de 1'100m², cette villa a été construite en 2000 avec goût et les matériaux utilisés sont de grandes qualités, telle que la cuisine haut de gamme équipée Poggenpohl, ses sols, ses baies vitrées, etc....
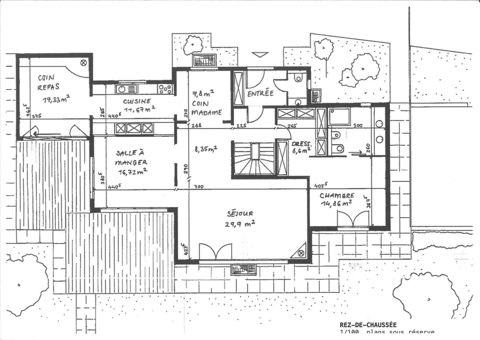
L'étage principale comprend un séjour avec un poêle en céramique FOCUS, 2 espaces repas dont un avec véritable four à pizza, d'une magnifique cuisine, d'un espace bureau, de la suite parentale et d'un WC visiteurs.
A l’étage, la maison dispose de 5 chambres à coucher et de 2 salles d’eau.
Le sous-sol bénéficie d'un espace sauna et douche avec son espace pour faire du sport, d'une cave à vin climatisée, d'une cave de rangement, d'une buanderie/local technique et d'un atelier.
La maison comprend 1 garage double pouvant accueillir 2 voitures avec son accès direct à la maison et la cour d'accès permet de garer 3 véhicules.
Côté extérieur, le jardin plat, clôturé et bien arboré jouit d'une piscine avec système nage contre-courant, de 2 terrasses en tek, d'un potager et d'un cabanon de jardin.
Idéalement située dans un quartier familiale de St-Saphorin sans vis-à-vis gênant, cette maison se trouve à 5min du centre de Morges.
Le système chauffage (PAC) a été remplacé en 2022, la maison est en parfait état d’entretien et ne nécessite aucun travaux.