- Une très charmante et prestigieuse Maison de Maître d'env. 600 m² habitables, plus 200m2 de sous-sol, moderne et en parfait état, aux spacieuses pièces à hauts plafonds et d'une grande luminosité, liées d'enfilade et qui offrent des vues à couper le souffle. Un paradis familial d'autant de prestige que de rare beauté, jouissant de partout de cette splendide vue sur le Léman et le Mont-Blanc.
- Placée au cœur d'un parc de 3'700 m² magnifiquement arborisé avec de belles espèces, maints recoins de rêve, une serre, une maisonnette pour enfants, une cabane dans l'arbre, un bac à sable en pierre, un trampoline, en bref le rêve de tous, sans vis-à-vis, et donc d'une intimité rare et précieuse.
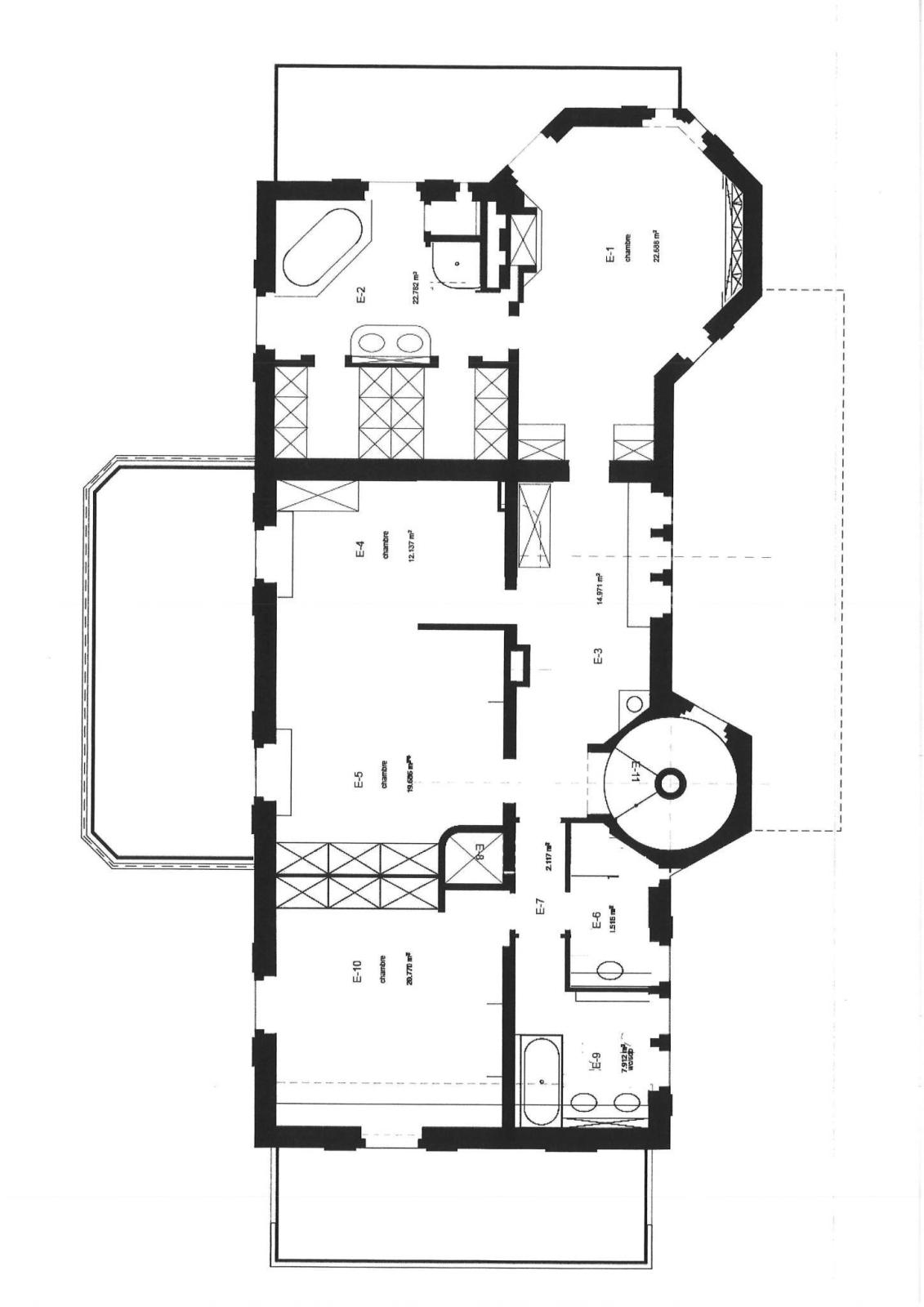
- Construite en 1951 pour un banquier-peintre Vaudois, "Le Crêt Noé" a été agrandi à deux reprises par Nicolas Büchler, architecte, le propriétaire actuel, qui lui a rajouté en 1994 la pergola d'entrée au Nord, le grand salon au Sud, la tour hexagonale à l'Ouest ainsi que l'esplanade de la piscine avec ses pavillons d'été, l’appartement de service et les deux fontaines de la serre, et puis en 2006 essentiellement le 2e étage avec son grand toit d'aujourd'hui délimité par deux pointes en charpente mansardée à l'Est et à l'Ouest.
- Techniquement le Crêt Noé est à l'avant-garde du confort, bénéficie d'un chauffage par pompe à chaleur géothermique qui distribue la chaleur à la fois par le sol et par des radiateurs. La maison est câblée Ethernet à haut débit, équipée d'un système sonore Revox, d'un système d'alarme, et son portail électrique est relié par interphone à chaque étage. L'illumination extérieure est dotée de détecteurs de présence. L'illumination du jardin est commandée par télécommandes et l'arrosage est automatisé. A noter le toit sur-isolé, conçu en deux structures porteuses superposées séparées, doté d'une ferblanterie d'une rare qualité entièrement exécuté en cuivre.
Sélection Coup de coeur BARNES Morges