Retour aux biens

Appartement de 3.5 pièces, Cossonay, Vaud

Nouveau 3.5 pièces au 1er étage, Lot A5

Réf 52879

3.5 pièces

2 chambres

1 salle de bain

77

La parcelle, située à proximité du centre-ville et compte deux zones, une mixte de faible densité (B) et une de moyenne densité (A). De ce fait, le projet présente deux bâtiments différenciés dont chacun est adapté à chaque zone, celui qui est le plus éloigné de la route, en zone mixte B, propose exclusivement des logements, tandis que, l’autre situé dans la zone mixte A propose, en plus des logements, deux surfaces destinées aux activités.

Le projet tient compte des orientations, des dégagements visuels et des contraintes du lieu pour définir les différentes typologies, qui vont du 2.5 au 4.5 pièces. Tous les appartements présentent des balcons orientés majoritairement au Sud. Des attiques avec des grandes terrasses viennent couronner chacun des deux immeubles.
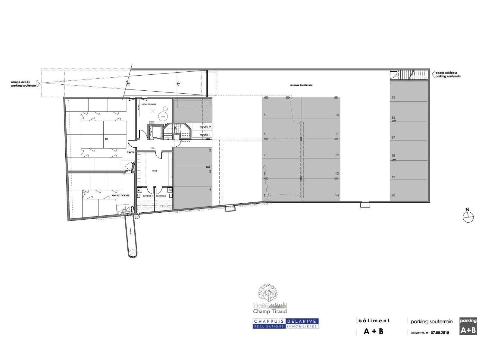
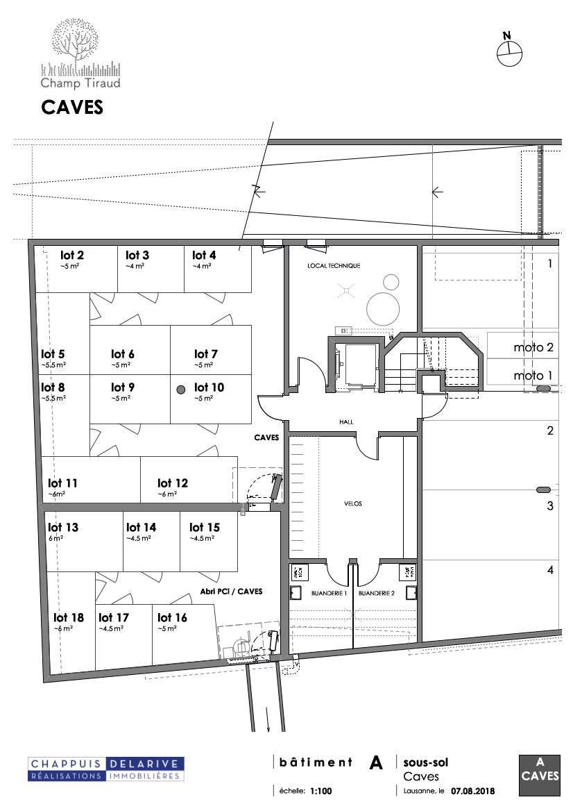
Le parking souterrain est accessible directement depuis le sous-sol du bâtiment A et par un escalier extérieur pour le bâtiment B avec en supplément, des places de parc extérieures.

Des zones de verdure arborisées et une place de jeux viennent animer l’espace entre les deux bâtiments.

Les toitures plates végétalisées intègrent des panneaux solaires photovoltaïques et thermiques pour assurer une production d’électricité, de chaleur et d’eau chaude sanitaire qui s’inscrit dans une logique d’énergie renouvelable. Le choix des fenêtres et des matériaux des façades agit de manière passive dans ce sens.

Les grandes baies vitrées des séjours ainsi que le choix des balustrades des balcons donnent une certaine transparence et assurent ainsi une bonne luminosité.

L’architecture contemporaine de l’ensemble se veut sobre avec des choix de couleurs contrastés entre les étages et les attiques. Le choix des matériaux, comme le béton propre, pour les balcons et une partie des surfaces d’activité s’accordent harmonieusement avec les garde-corps en acier inox et la texture des façades en crépis fin.

Un soin particulier a été apporté à la conception de cet ensemble afin d’allier esthétique et fonctionnalité.

Caractéristiques du bien

Type :

Appartement

Pièce(s) :

3.5

Etage(s) :

1

Chambre(s) :

2

Salle de bain et douche :

1

Place(s) de parc :

Oui

Surface habitable :

77 m²

Surface pondérée :

81 m²

Disponibilité :

Sur demande

Exposition :

Est

Emplacement du bien

AUTRES BIENS AUX ALENTOURS

Manoir du XVème siècle sis sur 27'000 m²
Campagne

Partager

Maison/Villa

SÉVERY • Prestige

Prix sur demande

13.0 pièces

7 chambres

1300 m²

Appartement atypique avec de généreux volumes

Visite 360°

Partager

Appartement

MORGES

CHF 965'000.-

5.5 pièces

2 chambres

334 m²

Magnifique demeure rénovée du XIXème siècle

Partager

Maison/Villa

MONTRICHER

CHF 4'850'000.-

15.0 pièces

4 chambres

800 m²

Découvrez le BARNES magazine