Retour aux biens

Maison/Villa de 7 pièces, Vandoeuvres, Genève

Le Cèdre Bleu - Projet de trois luxueuses villas contemporaines Villa B

Réf 57121

7.0 pièces

4 chambres

4 salles de bain

350 m²

Cette magnifique villa contiguë aux lignes contemporaines offre plus de 350 m² utiles répartis sur 3 niveaux.
Implantée sur une belle parcelle de 301 m² au calme, elle vous séduira par ses finitions de grande qualité, sa luminosité et ses volumes.
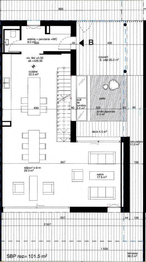
Le rez-de-chaussée d'une surface d'environ 100 m² utiles se compose suit:
Le hall d’entrée avec penderie vous mène sur une vaste et lumineuse cuisine équipée avec îlot central.
Cette dernière s'ouvre sur le séjour/salle à manger au bénéfice de larges baies vitrées orientées sud ouest et offrant un ensoleillement optimal tout au long de la journée.
De plain-pied, votre terrasse, le patio et le jardin vous sont accessibles directement par le séjour. Des toilettes visiteurs avec lave mains sont également prévues dans l'entrée.
Un escalier bénéficiant d'une grande lumière naturelle, grâce à la baie vitrée sur le patio, vous conduira à l’étage supérieur .

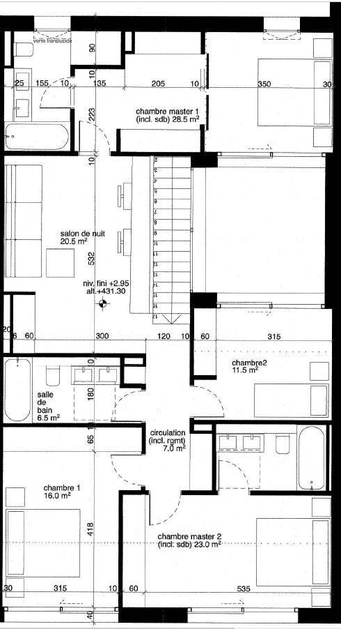
Le premier étage d’une surface de près de 140 m2 utiles accueil : Un salon de nuit avec armoires
Une suite parentales avec dressing et salle de bains/wc attenants.
Une suite avec placards intégrés et avec salle de bains/wc attenante. Deux chambres à coucher avec placards intégrés. Une salle de bains/wc avec jour zénithal.

Le sous-sol de plus de 110 m2 utiles disposera d'un puits de lumière naturelle :
Une grande salle de jeux bénéficiant d'une belle luminosité. Vaste salle de fitness et salle de bains/WC. Une buanderie/local technique et une cave complètent l'étage.
Les extérieurs : Une terrasse couverte prolongée par un agréable jardin verdoyant au calme et l'abri des regards, ainsi qu'un patio avec un abri privatif et 2 places de parking extérieures complètent parfaitement l'ensemble.


Découvrez le site dédié au projet : www.cedre-bleu.ch

Caractéristiques du bien

Type :

Maison/Villa

Pièce(s) :

7

Chambre(s) :

4

Salle de bain et douche :

4

Surface habitable :

240 m²

Surface du terrain :

301 m²

Surface utile :

350 m²

Disponibilité :

Sur demande

Année de construction :

2022

Exposition :

Sud

Emplacement du bien

AUTRES BIENS AUX ALENTOURS

Charmante maison à rénover avec vue sur lac

Partager

Maison/Villa

COLOGNY

CHF 9'500'000.-

8.0 pièces

3 chambres

350 m²

Magnifique loft avec terrasses et jardin

Partager

Appartement

TROINEX

CHF 2'690'000.-

6.0 pièces

4 chambres

181 m²

Spacieux duplex en attique de 235 m² entièrement rénové

Partager

Appartement

BERNEX

CHF 2'150'000.-

9.0 pièces

5 chambres

235 m²

Découvrez le BARNES magazine