Retour aux biens

Appartement de 8 pièces, Genève

Magnifique attique avec vue imprenable sur la ville

Réf 55886

8.0 pièces

4 chambres

2 salles de bain

220

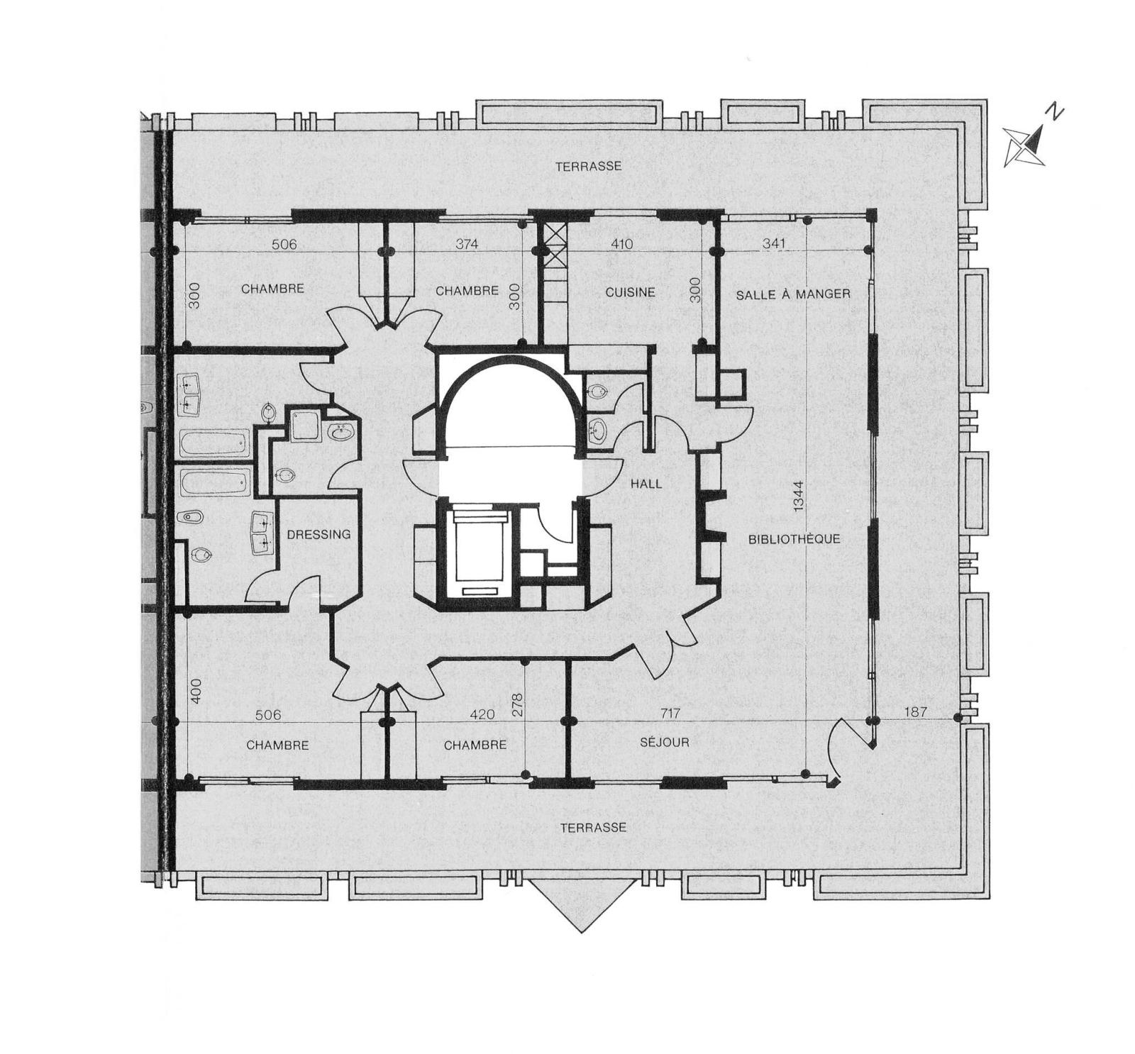
Ce magnifique attique de 8 pièces est situé dans un très bel immeuble de standing dans le quartier prisé du Petit-Saconnex, à proximité immédiate des Organisations Internationales.
Lumineux et en pignon, l'appartement bénéficie d'une vue panoramique et imprenable sur la ville, les Alpes et le Jet d'eau.
L'immeuble bénéficie d'une magnifique piscine intérieure et d'un sauna.
L'appartement dispose d'une surface de 220m² habitables et d'une belle terrasse de 128m² avec une vue panoramique; la terrasse est accessible depuis tout l'appartement.

La partie jour offre un large hall d'entrée avec armoires encastrées, un WC visiteurs, un vaste séjour / salle à manger, et une cuisine habitable et agencée.
La partie nuit se compose de 4 chambres à coucher dont une master bedroom avec dressing et salle de bain en suite.Une salle de bains supplémentaire complète ce bien.

L'appartement profite de la climatisation.

Deux boxes simples avec portes automatiques sont disponible avec l'appartement.

Des places de parc sont à disposition des visiteurs dans la copropriété.

Le bien nécessite une remise au goût du jour.

Caractéristiques du bien

Type :

Appartement

Etage(s) :

Attique

Chambre(s) :

4

Salle de bain et douche :

2

Terrasse(s) :

oui

Place(s) de parc :

Oui

Surface habitable :

220 m²

Surface pondérée :

285 m²

Disponibilité :

Sur demande

Année de construction :

1990

Emplacement du bien

AUTRES BIENS AUX ALENTOURS

Charmante maison à rénover avec vue sur lac

Partager

Maison/Villa

COLOGNY

CHF 9'500'000.-

8.0 pièces

3 chambres

350 m²

Magnifique loft avec terrasses et jardin

Partager

Appartement

TROINEX

CHF 2'690'000.-

6.0 pièces

4 chambres

181 m²

Spacieux duplex en attique de 235 m² entièrement rénové

Partager

Appartement

BERNEX

CHF 2'150'000.-

9.0 pièces

5 chambres

235 m²

Découvrez le BARNES magazine