Retour aux biens

Appartement de 4.5 pièces, Chavannes-près-Renens, Vaud

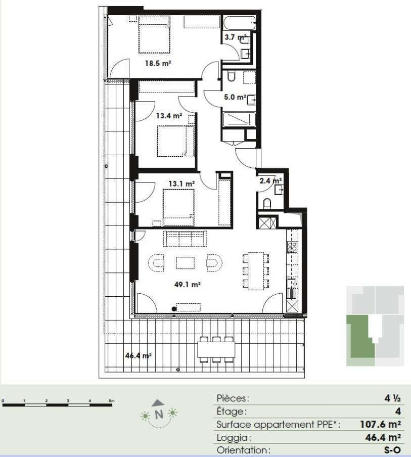
4.5 pièces sis 4ème étage - Lot n° F4.4

Réf 52396

4.5 pièces

3 chambres

2 salles de bain

108

Sise proche des commodités usuelles, à quelques minutes de l’UNIL,de l’EPFL, de l’ECAL, des transports publics ou encore des axes autoroutiers,la promotion « Les Cèdres » saura répondre à toutes vos attentes.

Composée de deux bâtiments labellisés MINERGIE vendus en PPE, dans un nouveau quartier d’habitation enconstruction, la promotion est constituée d’appartements élégants à typologie variée ; ceci dans unenvironnement contemporain amenant à une nouvelle adaptation de concevoir laville.

Ce quartier mixte, composé d’habitations et de commerces, offriraà ses résidents une qualité de vie inégalable notamment en privilégiant lamobilité douce. Espaces de vie communs tels qu’un atrium central, aire de jeux ou encore parking souterrainne sont que quelques-uns des atouts de ces bâtiments en cours de réalisation.

L’appartement proposé, orienté Sud-Ouest au 4ème étage est disposé comme suit :

- Hall d'entrée avec armoires murales
- 2 salles de bains avec WC
- 3 chambres à coucher
- 1 grand séjour/salle à manger
- Cuisine ouverte et agencée
- Wc visiteurs avec lavabo
- TerrasseLa livraison de votre futur logement, dont le choix des finitionsest possible, est prévue courant du premier trimestre 2020.Une place de parc intérieure est disponible en sus du prix devente (CHF 35'000.-).

N’hésitez plus et retrouvez tous les lots disponibles sur www.auxcedres.ch/gerofinance-dunand

Caractéristiques du bien

Type :

Appartement

Pièce(s) :

4.5

Etage(s) :

4

Chambre(s) :

3

Salle de bain et douche :

2

Place(s) de parc :

Oui

Surface habitable :

107.6 m²

Surface pondérée :

123.1 m²

Disponibilité :

Sur demande

Exposition :

Sud-Ouest

Emplacement du bien

AUTRES BIENS AUX ALENTOURS

Demeure d'exception au cœur des beaux quartiers lausannois
Exclusivité

Partager

Vidéo

Maison/Villa

LAUSANNE • Prestige

CHF 7'900'000.-

11.5 pièces

6 chambres

450 m²

Propriété d'architecte intégralement rénovée

Partager

Maison/Villa

LA CROIX (LUTRY) • Prestige

CHF 6'800'000.-

11.0 pièces

8 chambres

500 m²

Dernière opportunité : Appartement neuf de 5 pièces avec vue sur Léman
Dernière opportunité

Partager

Appartement

PULLY

CHF 2'250'000.-

5.0 pièces

3 chambres

113 m²

Découvrez le BARNES magazine