Retour aux biens

Appartement de 3.5 pièces, Epalinges, Vaud

3.5 pièces sis 4ème étage - Lot N°402

Réf 52308

3.5 pièces

2 chambres

1 salle de bain

80

Sise dans un écrin de verdure, à quelques minutes de l’EcoleHôtelière de Lausanne, des transports publics ou encore des axes autoroutiers,la promotion « Grand Chemin » saura répondre à toutes vos attentes.

Composée de deux bâtiments se faisant face en se complétant, lapromotion regroupe d’une part des appartements élégants offrant une vue dégagéeà ses futurs occupants et accueille, d’autre part, des activités commerciales.

Parking souterrain pour voitures, vélos et poussettes, espaces devie communs avec jardin, cour privative et aire de jeux ne sont quequelques-uns des atouts de ces bâtiments en cours de construction.

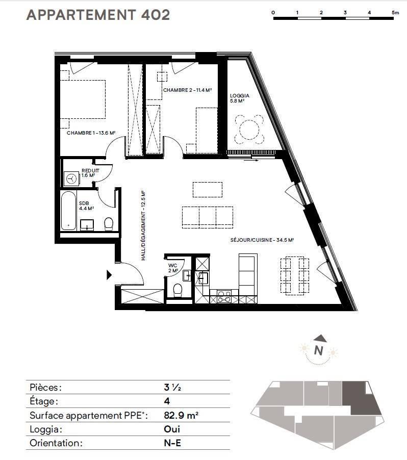
L'appartement proposé, orienté Nord-Est au 4ème étage, est disposé comme suit :

- Hall d'entrée avec armoires murales
- Vaste séjour avec espace repas
- Cuisine agencée ouverte
- Chambre à coucher N°1
- Chambre à coucher N°2
- Salle de bains / wc
- Wc visiteurs
- Réduit avec emplacement pour colonne de lavage
- Balcon
La livraison de votre futur logement, dont le choix des finitions est possible, est prévue courant de l'automne 2019.Une place de parc intérieure est disponible en sus du prix de vente (CHF 40'000.-).N'hésitez plus et retrouvez tous les lots disponibles sur https://www.grand-chemin.ch/gerofinance-dunand

Caractéristiques du bien

Type :

Appartement

Pièce(s) :

3.5

Etage(s) :

4

Chambre(s) :

2

Salle de bain et douche :

1

Place(s) de parc :

Oui

Surface habitable :

79.5 m²

Surface pondérée :

82.4 m²

Disponibilité :

Sur demande

Exposition :

Nord-Est

Emplacement du bien

AUTRES BIENS AUX ALENTOURS

Demeure d'exception au cœur des beaux quartiers lausannois
Exclusivité

Partager

Vidéo

Maison/Villa

LAUSANNE • Prestige

CHF 7'900'000.-

11.5 pièces

6 chambres

450 m²

Propriété d'architecte intégralement rénovée

Partager

Maison/Villa

LA CROIX (LUTRY) • Prestige

CHF 6'800'000.-

11.0 pièces

8 chambres

500 m²

Maison de Maître de 340 m² au cœur de la nature.
Exclusivité

Partager

Maison/Villa

SAVIGNY

CHF 3'300'000.-

9.5 pièces

6 chambres

340 m²

Découvrez le BARNES magazine