Retour aux biens

Appartement de 2.5 pièces, Epalinges, Vaud

Encore 3 opportunités à saisir - 2.5 pièces au 7ème étage

Réf 52296

2.5 pièces

1 chambre

1 salle de bain

52

N'hésitez plus et retrouvez tous les lots disponibles sur : https://www.grand-chemin.ch/barnes

Sise dans un écrin de verdure, à quelques minutes de l’École Hôtelière de Lausanne, des transports publics ou encore des axes autoroutiers, la promotion « Grand Chemin » saura répondre à toutes vos attentes.

Composée de deux bâtiments se faisant face en se complétant, la promotion regroupe d’une part des appartements élégants offrant une vue dégagée à ses futurs occupants et accueille, d’autre part, des activités commerciales.

Parking souterrain pour voitures, vélos et poussettes, espaces de vie communs avec jardin, cour privative et aire de jeux ne sont que quelques-uns des atouts de ces bâtiments en cours de construction.

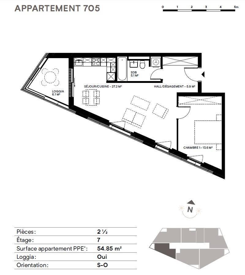
L'appartement proposé, orienté Sud-Ouest au 7ème étage, est disposé comme suit :

- Hall d'entrée avec armoires murales
- Séjour avec espace repas
- Cuisine agencée ouverte
- Chambre à coucher
- Salle de bains / WC avec emplacement pour colonne de lavage
- Balcon

La livraison de votre futur logement est prévue pour mai 2020.

Une place de parc intérieure est disponible en sus du prix de vente (CHF 40'000.-).

Caractéristiques du bien

Type :

Appartement

Pièce(s) :

2.5

Etage(s) :

7

Chambre(s) :

1

Salle de bain et douche :

1

Place(s) de parc :

Oui

Surface habitable :

51.8 m²

Surface pondérée :

54.8 m²

Disponibilité :

Sur demande

Exposition :

Sud-Ouest

Emplacement du bien

AUTRES BIENS AUX ALENTOURS

Demeure d'exception au cœur des beaux quartiers lausannois
Exclusivité

Partager

Vidéo

Maison/Villa

LAUSANNE • Prestige

CHF 7'900'000.-

11.5 pièces

6 chambres

450 m²

Propriété d'architecte intégralement rénovée

Partager

Maison/Villa

LA CROIX (LUTRY) • Prestige

CHF 6'800'000.-

11.0 pièces

8 chambres

500 m²

Maison de Maître de 340 m² au cœur de la nature.
Exclusivité

Partager

Maison/Villa

SAVIGNY

CHF 3'300'000.-

9.5 pièces

6 chambres

340 m²

Découvrez le BARNES magazine